Feel the Water
FODRV Control Valve

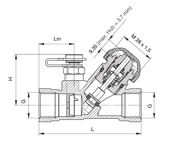
7217 V

FODRV Control Valve

Technical data:

Max. operating temperature 130 °C

Max. operating pressure 20 bar

Max. differential pressure on the seat 10 bar

Material: DZR

Control valve herz

Control valve herz

Product List

Code Description
  • VKE
M 1721 75 FODRV Control Valve
  • 1
 

    © 2026. HERZ

    internetten haber sildirme
    SESSION: